欢迎您访问浙江省自考信息网!网站为考生提供浙江自考信息服务,供学习交流使用,非政府官方网站,官方信息以浙江省教育考试院,今天是

免费咨询:16657169113

在线咨询 | 考生交流群 | 公众号

专题: 浙江省自考管理系统 浙江自考成绩查询网址 市、县(区)咨询电话 准考打印入口 杭州 宁波 温州 嘉兴 湖州 绍兴 金华 衢州 舟山 台州 丽水
您当前所在位置: 浙江自考网 > 钢结构> 2019年4月自考02442钢结构真题

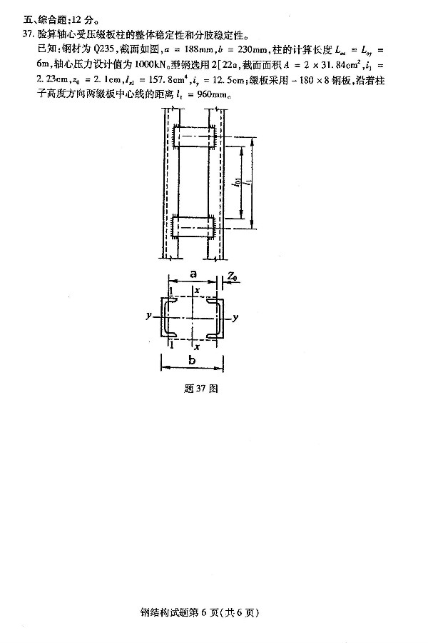
2019年4月自考02442钢结构真题

日期:2019-11-28  编辑整理:浙江自考信息网  

01_01.jpg
01_02.jpg
02_01.jpg
02_02.jpg
03_01.jpg

03_02.jpg


上一篇:暂无
下一篇:全国2012年4月高等教育自学考试钢结构试题

浙江自考网声明:

1、由于各方面情况的调整与变化,本网提供的考试信息仅供参考,考试信息以省考试院及院校官方发布的信息为准。

2、本网信息来源为其他媒体的稿件转载,免费转载出于非商业性学习目的,版权归原作者所有,如有内容与版权问题等请与本站联系。联系邮箱:952056566@qq.com